Menu
Un projet réalisé par :Cambiums  Architecte à Lyon

guillotière

 Lyon - 69
Cambiums
Accueil Projets guillotière

transformation d'appartement

guillotière

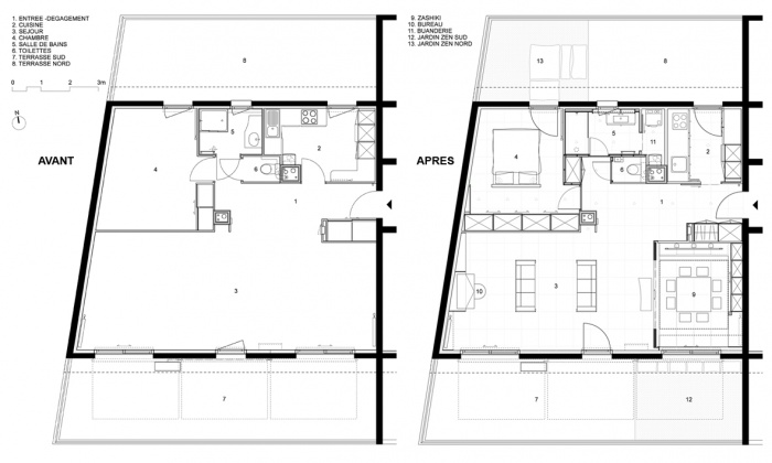
Passionnés par la culture japonaise, les nouveaux propriétaires de cet appartement situé en attique, avec ses deux terrasses sud et nord, avaient à cœur de le transformer pour l’adapter à leurs goûts et leur mode de vie.

A part la réfection totale des sols pour un carrelage de grand format, les interventions restent minimes et se règlent dans le moindre détail pour limiter les coûts et la durée des travaux.
La cuisine est réduite et ré-agencée pour libérer un espace buanderie accessible depuis la nouvelle salle de bains.
Pour augmenter les volumes de rangements et donner une lecture homogène des espaces, deux ensembles menuisés renferment placards, cellier, vestiaire, techniques, tout en intégrant les portes d’accès aux différentes pièces.
La salle de bains, calepinée selon un plan très rigoureux, s’équipe de meubles fabriqués sur mesure permettant de conserver un éclairage et une ventilation naturelle.

Dans une seconde phase de travaux, un zashiki (coin japonais) et un espace bureau équiperont le grand séjour.

  • guillotière : image_projet_mini_88871
  • guillotière : plans
  • guillotière : image_projet_mini_88861
  • guillotière : 013_HABILLAGES
  • guillotière : 013_HABILLAGES2
  • guillotière : calepinagesdb
  • guillotière : 013_SDB21
  • guillotière : 013_SDB22
  • guillotière : 013_SDB23
  • guillotière : 013_INTERPOIGNEE

Trouvez un architecte pour votre projet

Protection de vos données personnelles

Depuis toujours, architectes-france.com ne transfère aucune donnée personnelle à d'autres acteurs que ceux directement concernés par le projet (architectes, architectes d'intérieur...) et qui appartiennent à son réseau. Nos listes ne sont jamais transmises ou vendues à des partenaires extérieurs, même si ceux-ci appartiennent au domaine de la construction.
Toute modification dans ce domaine ne serait effectuée qu'avec votre consentement.

Je consens à ce que mes données personnelles soient collectées pour permettre à architectes-france de transférer votre projet aux architectes. Seul Architectes-france, ses équipes internes et la maitrise d'oeuvre concernée par le projet y ont accès. Aucune transmission de données à des tiers à l'exclusion de ceux décrits ci dessus n'est réalisée.

Mes données téléphoniques seront uniquement utilisées par Architectes-france.com et les architectes de notre réseau dans le cadre de la qualification et du suivi de mon projet.

Les données sont conservées pendant une durée de 18 mois courant à partir des derniers contacts effectifs entre architectes-france et vous ou architectes-france et un membre de la maitrise d'oeuvre en rapport avec ce projet et qui serait en relation avec architectes-france.

Conformément à la loi « informatique et libertés », vous pouvez exercer votre droit d'accès aux données vous concernant et les faire rectifier en contactant : Architectes-france, 23 avenue du Mirail - parc du Mirail - 33370 Artigues-près Bordeaux. Tél. 05.47.74.51.01 - contact@architectes-france.com

Trouvez un architecte pour votre projet

Protection de vos données personnelles

Depuis toujours, architectes-france.com ne transfère aucune donnée personnelle à d'autres acteurs que ceux directement concernés par le projet (architectes, architectes d'intérieur...) et qui appartiennent à son réseau. Nos listes ne sont jamais transmises ou vendues à des partenaires extérieurs, même si ceux-ci appartiennent au domaine de la construction.
Toute modification dans ce domaine ne serait effectuée qu'avec votre consentement.

Je consens à ce que mes données personnelles soient collectées pour permettre à architectes-france de transférer votre projet aux architectes. Seul Architectes-france, ses équipes internes et la maitrise d'oeuvre concernée par le projet y ont accès. Aucune transmission de données à des tiers à l'exclusion de ceux décrits ci dessus n'est réalisée.

Mes données téléphoniques seront uniquement utilisées par Architectes-france.com et les architectes de notre réseau dans le cadre de la qualification et du suivi de mon projet.

Les données sont conservées pendant une durée de 18 mois courant à partir des derniers contacts effectifs entre architectes-france et vous ou architectes-france et un membre de la maitrise d'oeuvre en rapport avec ce projet et qui serait en relation avec architectes-france.

Conformément à la loi « informatique et libertés », vous pouvez exercer votre droit d'accès aux données vous concernant et les faire rectifier en contactant : Architectes-france, 23 avenue du Mirail - parc du Mirail - 33370 Artigues-près Bordeaux. Tél. 05.47.74.51.01 - contact@architectes-france.com